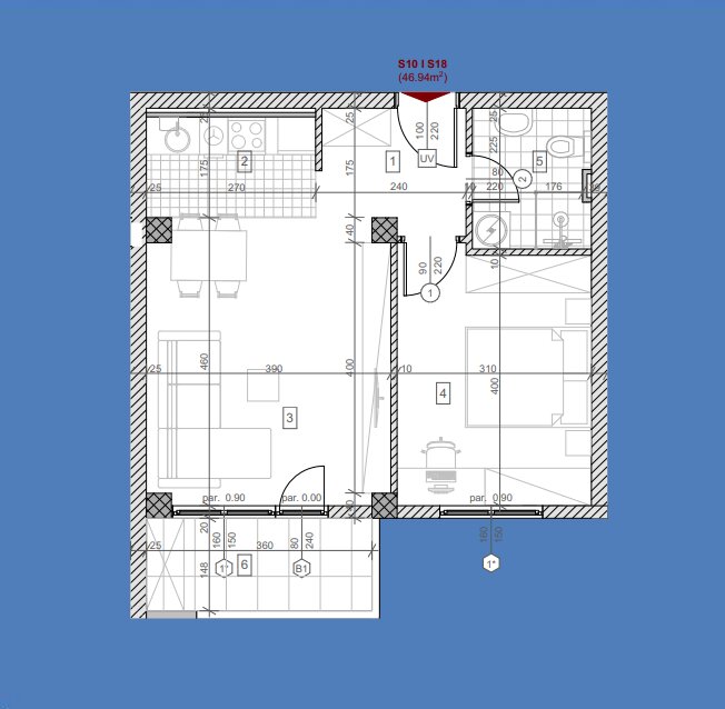
Dvosoban stan na drugom spratu. Stan se sastoji od ulaza, kuhinje, kupatila, dnevne sobe, lođe i spavaće sobe.
| 1. | Ulaz | parket | 4.43m² | 4.30m² |
| 2. | Kuhinja | keramičke pločice | 4.73m² | 4.58m² |
| 3. | Dnevna soba | parket | 17.52m² | 16.99m² |
| 4. | Spavaća soba | parket | 12.62m² | 12.24m² |
| 5. | Kupatilo | keramičke pločice | 4.28m² | 4.15m² |
| 6. | Lođa | keramičke pločice | 4.83m² | 4.68m² |
| ukupno / neto | 48.41m² | 46.94m² | ||





Za više informacija i proveru dostupnosti stambenih i poslovnih prostora, pošaljite nam upit.