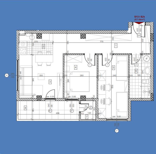
Trosoban stan na prvom spratu. Stan se sastoji od ulaza, kuhinje, kupatila, dnevne sobe, ostava, lođe i dve spavaće sobe.
| 1. | Ulaz | parket | 11.94m² | 11.58m² |
| 2. | Kuhinja | keramičke pločice | 4.43m² | 4.30m² |
| 3. | Dnevna soba | parket | 13.37m² | 12.97m² |
| 4. | Spavaća soba | parket | 8.97m² | 8.70m² |
| 5. | Spavaća soba | parket | 12.16m² | 11.80m² |
| 6. | Kupatilo | keramičke pločice | 5.68m² | 5.51m² |
| 7. | Ostava | keramičke pločice | 1.52m² | 1.47m² |
| 8. | Lođa | keramičke pločice | 6.71m² | 6.51m² |
| ukupno / neto | 64.78m² | 62.84m² | ||





Za više informacija i proveru dostupnosti stambenih i poslovnih prostora, pošaljite nam upit.