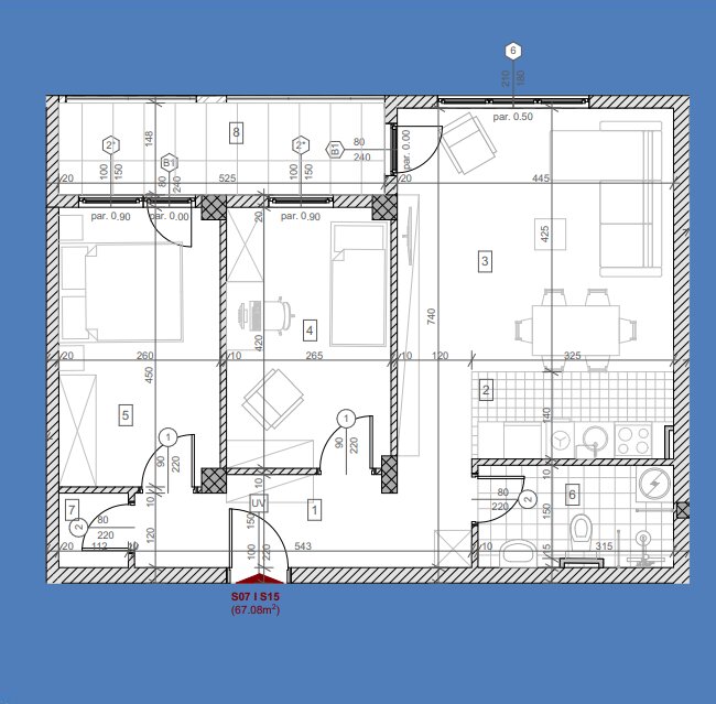
Dvosoban stan na prvom spratu. Stan se sastoji od ulaza, kuhinje, kupatila, dnevne sobe, vešernice, lođe i dve spavaće sobe.
| 1. | Ulaz | parket | 7.93m² | 7.69m² |
| 2. | Kuhinja | keramičke pločice | 4.55m² | 4.41m² |
| 3. | Dnevna soba | parket | 20.59m² | 19.97m² |
| 4. | Spavaća soba | parket | 11.04m² | 10.71m² |
| 5. | Spavaća soba | parket | 11.55m² | 11.20m² |
| 6. | Kupatilo | keramičke pločice | 5.20m² | 5.04m² |
| 7. | Vešernica | keramičke pločice | 1.34m² | 1.30m² |
| 8. | Lođa | keramičke pločice | 6.97m² | 6.76m² |
| ukupno / neto | 69.17m² | 67.08m² | ||





Za više informacija i proveru dostupnosti stambenih i poslovnih prostora, pošaljite nam upit.